風米動態
頂尖攝影工作室STUDIO:粗狂工業風和現代簡約風的融合
傳 播 | 影 響 | 改 變 |展示全球頂級辦公空間
ASTUDIO攝影工作室是知名攝影師黎曉亮及其團隊的工作空間。作為行業內最頂尖的攝影機構之一,ASTUDIO工作室的整體呈現必然會成為行業的風向標。
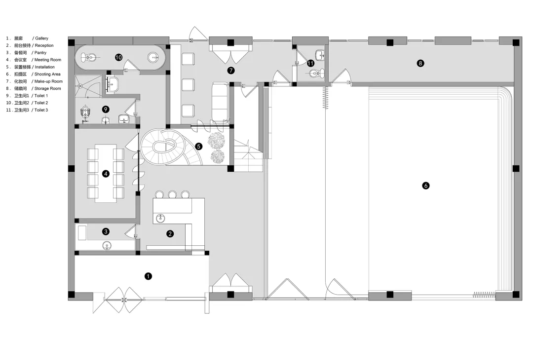
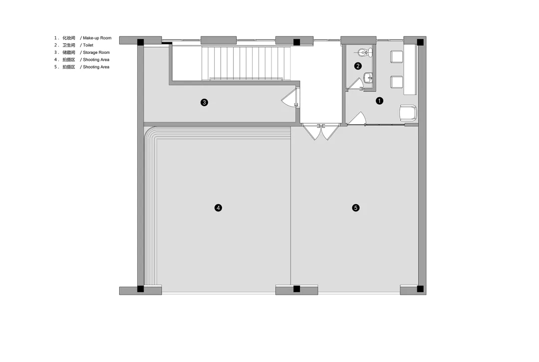
ASTUDIO攝影工作室位于CBD東側菁英谷文創園內,整體的設計風格融合了粗狂工業風和現代簡約風。原有建筑為雙層的廠房空間,這種大空間非常適合拍攝的需求。攝影師希望把這個大空間改造為兩個相對獨立的拍攝區,并且有各自獨立的化妝間和出入口,從而可以同時進行兩場獨立的拍攝。UUA將原有的二層建筑在豎向上改造成為了三層的空間,其中第一層包含接待區和1號拍攝區,第二層整體為辦公空間,第三層是2號拍攝區,這種豎向上的分區保障了兩場同時拍攝的獨立性。
ASTUDIO攝影工作室是一個多功能的復合空間,UUA把拍攝、化妝、接待、辦公、會議、休閑等多種功能有機地融合在這個通高的廠房之中,空間緊湊又富于變化。拍攝區為最重要的功能單元,由于需要足夠的長寬高空間來滿足設置無影墻、布景布光以及拍攝距離等需求,所以設計師將一層的一半劃歸為1號拍攝區,保留雙層通高的空間形式;另一半則加建出雙層空間,其中一層作為接待,二層作為辦公。廠房的三層因為原本具有足夠的層高,因此被設置為2號拍攝區。
在空間的材質使用上,主體采用黑白灰的配色,局部使用了黃銅質感的金屬色,成為整體色調的亮點。公共區域的地面采用水泥自流平;辦公區和化妝間采用木地板;墻體保留原有磚墻肌理,表面清漆處理;而天花則用黑色噴涂裸頂,與攝影工作室的質感格調相匹配。
在設計和建造過程中,UUA與攝影師黎曉亮和藝術家黎薇合作,為工作室添加了一系列藝術裝置,增加了空間整體的趣味性和藝術感。
藝術與藝術本就是相通的,ASTUDIO攝影工作室作為藝術跨界合作的成果,最終呈現出一個富有創造力和想象力的綜合性攝影空間,使之為今后的攝影創作提供了豐富的可能性。
▲一層平面圖
▲二層平面圖
▲三層平面圖
▲空間結構圖
企業簡介
-
南寧風米裝飾設計工程有限公司創始于2009年。專業提供中高端辦公商業空間的完整方案設計以及配套施工服務。風米以高品質的原創設計為核心競爭力,以規范、誠信、高效的整體服務為重要保障。贏得了眾多知名企業的青睞,業務蒸蒸日上。目前已崛起成為廣西辦公商業空間設計領域的中堅力量。
風米服務理念:為客戶提供超越期望的服務,不辱使命。
風米競爭格言:不畏強手,以專業贏市場。
設計理念:只做不一樣的設計。
施工承諾:費用透明,標準化管理,高品質交付

















